Wissant Villa Sainte Therese
Preview only — see all hotel photos
See all 29 photos
Oteli haritada göster
Wissant Villa Sainte Therese
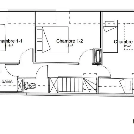
Wissant şehrinde bulunan 2 yatak odalı Wissant Villa Sainte Therese, şehir manzaralı teras sunar. Musee du Mur de l'Atlantique arabayla 15 dakikalık uzaklıktadır.
Eglise Saint Nicolas konaklama tesisinden 600 metre uzaklıkta bulunmaktadır. Wissant şehir merkezine 1 km uzaklıktadır. Konuklar, villaya sadece 450 metre mesafedeki La Terrasse restoranında hazırlanan Avrupa lezzetlerinin tadını çıkarabilirler. Epave du Lord Grey villanın bitişiğinde yer almaktadır.
Bazı birimlerde mikrodalga fırın, elektrikli su ısıtıcısı, buzdolabı ile donatılmış tam donanımlı mutfak vardır. Bu tesis, şehre bakmaktadır. Bazı odaların banyo odaları banyo küveti, duş içermektedir.
En yakın havaalanı olan Le Touquet Paris Plag havaalanı, Wissant Villa Sainte Therese villasına 55 km uzaklıktadır.
Kolaylıklar
Genel Olanaklar
- Wi-Fi
- Özel plaj
- Çocuk dostu
- Evcil hayvan kabul edilmez
Olanaklar
- Tesis genelinde sigara içilemez
- Wi-Fi
- Otopark
- Evcil hayvan yasaktır
- Su ısıtıcısı
- Mutfak aletleri
- Açık hava yemek alanı
- Plaj erişimi
- Teras
- Yemek masası
- Çamaşır makinesi
- Düz ekran TV
- Beşikler/bebek karyolaları
- Parke zemin
Konaklama Politikası
Harita
Turistik Yerler
Havalimanları
- Le Touquet Paris Plag Havaalani (54 km)
Yorumlar
%100 Doğrulanmış Yorumlar